Село строили учитывая климатические условия и кочевые традиции местных, пишет Archdaily.
К слову: Как пасхальные яйца: в Иране построили село из цветных купольных домов – невероятные фото
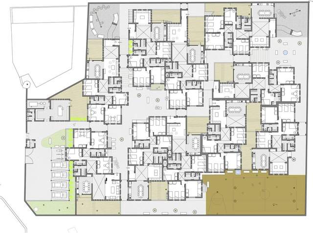
Село будет иметь узкие улочки без машин, которые призваны стать площадями для детских игр. Общественные и частные зоны планируют четко разделить. Публичные пространства будут иметь много места для детей, а частные дадут семьям возможность уединения.
Строительство жилья получилось довольно бюджетным / Фото Archdaily
Также на территории села будет расти много растений и овощей, которые будут выращивать сами жители. Что касается распределения, то все дома придерживаются приблизительно устойчивого планирования, но расположены по-разному.
На территории комплекса будет много внутренних двориков / Фото Archdaily
Узкие улицы также позволяют домам создавать затененные аллеи. Такое планирование идеально подходит для жаркого климата страны.
Вся инфраструктура в селе подстроена под детей / Фото Archdaily
Обратите внимание: Строили 10 лет: в Греции возвели комплекс зданий по математической диаграмме украинца – фото
Этот социальный проект создан для того, чтобы помочь малообеспеченным семьями со школьниками и детьми дошкольного возраста получить бесплатное жилье.
Смотрите больше фото детской деревни в Джибути:






